



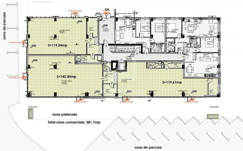
imobil de inchiriat pretabil pentru birouri, situat in zona spitalului clinic de boli infectioase si a universitatii de medicina si farmacie, pe str. iuliu moldovan . imobilul are suprafata utila de 460 mp si este dispus pe 3 nivele (p+2), cu spatiu de parcari exterioare. se inchiriaza minim 150 mp (un nivel) sau toata cladirea. nr. de contact: 731 - arata telefon -